Tamatia

Le modèle de maison préfabriqué Tamatia à un étage et de conception 1 + 1 offre un espace vital commode et chaleureux pour les nouveaux couples ou ceux qui vivent seuls. Bien qu’elle ait une superficie de 37 m2, grâce à sa conception, elle vous permet d’utiliser chaque petit espace le plus efficacement que possible.

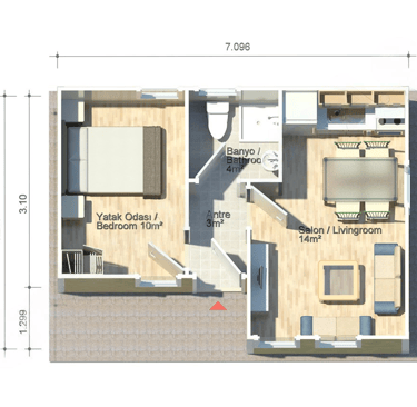
Tamatia, d’une apparence élégante de maison d’été, a aussi un petit espace qui peut être utilisé comme une petite terrasse. La porte d’entrée de cette maison s’ouvre sur une entrée de 3 m2 qui a trois portes qui s’ouvrent au salon, salle de bain et chambre à coucher. Dans le salon de 14 m2, se trouve aussi la cuisine où vous pourrez facilement placer votre cuisinière et réfrigérateur. Le salon qui peut facilement accommoder le groupe de fauteuil et une table à manger élabore un espace confortable pour ses propriétaires. Dans la salle de bain de 4 m2, se trouvent un bac à douche, un WC et un lavabo. La chambre à coucher de 10 m2 permet d’y placer un lit pour deux personnes et une grande armoire.

Tamatia, l’un des modèles de maison préfabriquée à un étage, est un choix idéal pour ceux qui veulent un lieu commode sur un petit espace. Ce modèle qui convient à ceux qui préfèrent la simplicité, peut aussi être choisi comme un modèle compact à utiliser dans les projets de grands ensembles. Tamatia, qui peut être choisi pour les lieux utilisés comme jardin de hobby ou les lieux de vacance, est idéal pour ceux qui rêvent d’une maison compacte et commode installée dans son jardin sur son petit terrain.

A propos du produit :

Plan de la maison :

Vous êtes intéréssé par cette maison ?